Bastelicaccia (20129) Exclusivité - En plein cœur du village de Bastelicaccia - Grande Villa avec Garage.
Belle situation pour cet ensemble immobilier situé dans le centre de Bastelicaccia. Exposition Sud Ouest - petite vue mer et campagne.
Situation : Vallée du Prunelli Liaison Bastelicaccia / Ocana
Superficie terrain :1680 m2 entièrement clôturé.
Y sont édifiés un ensemble bâti principal composé de :
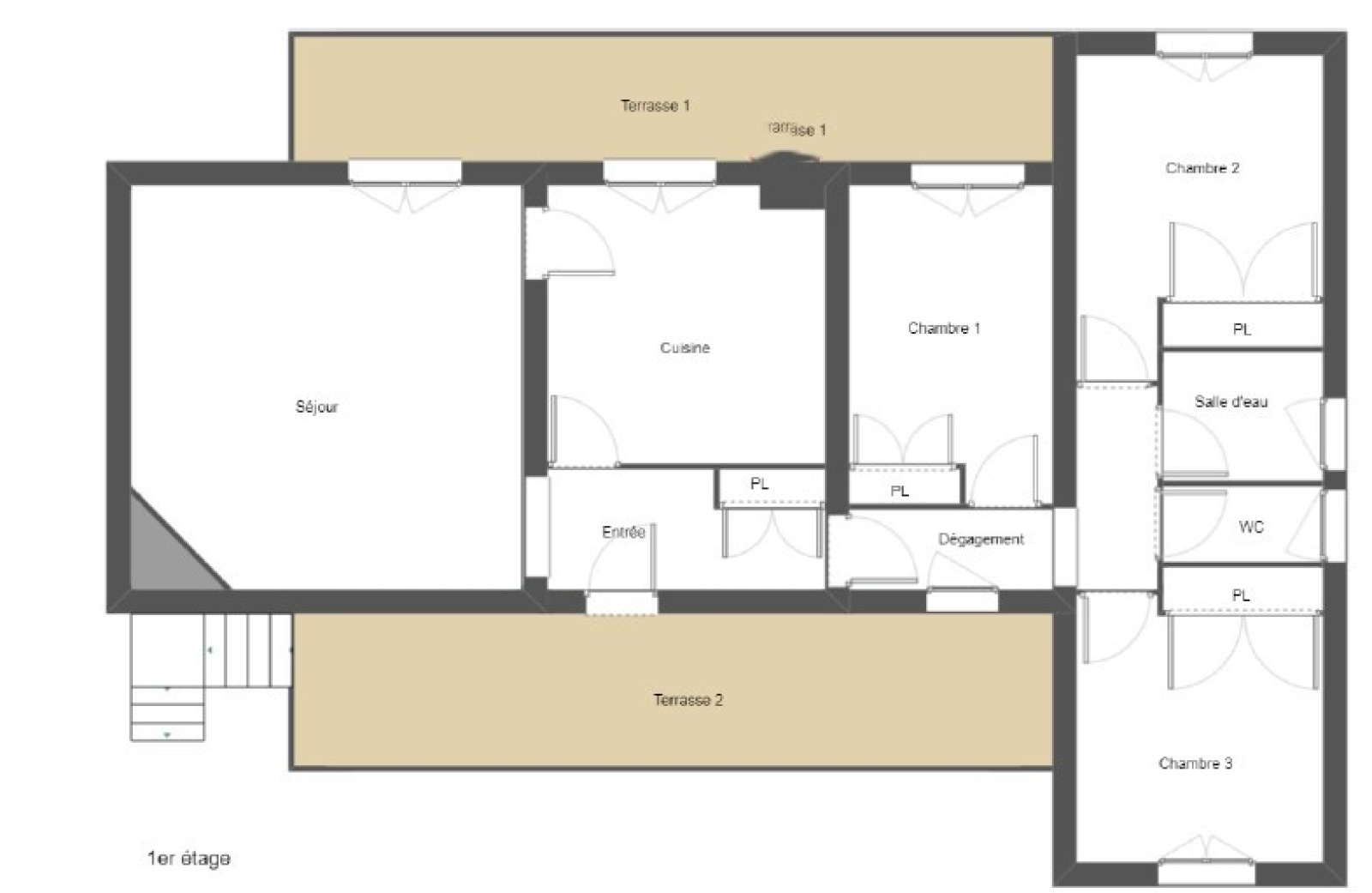
Un appartement de type 4 à l’étage d’une superficie d’environ 80m2.
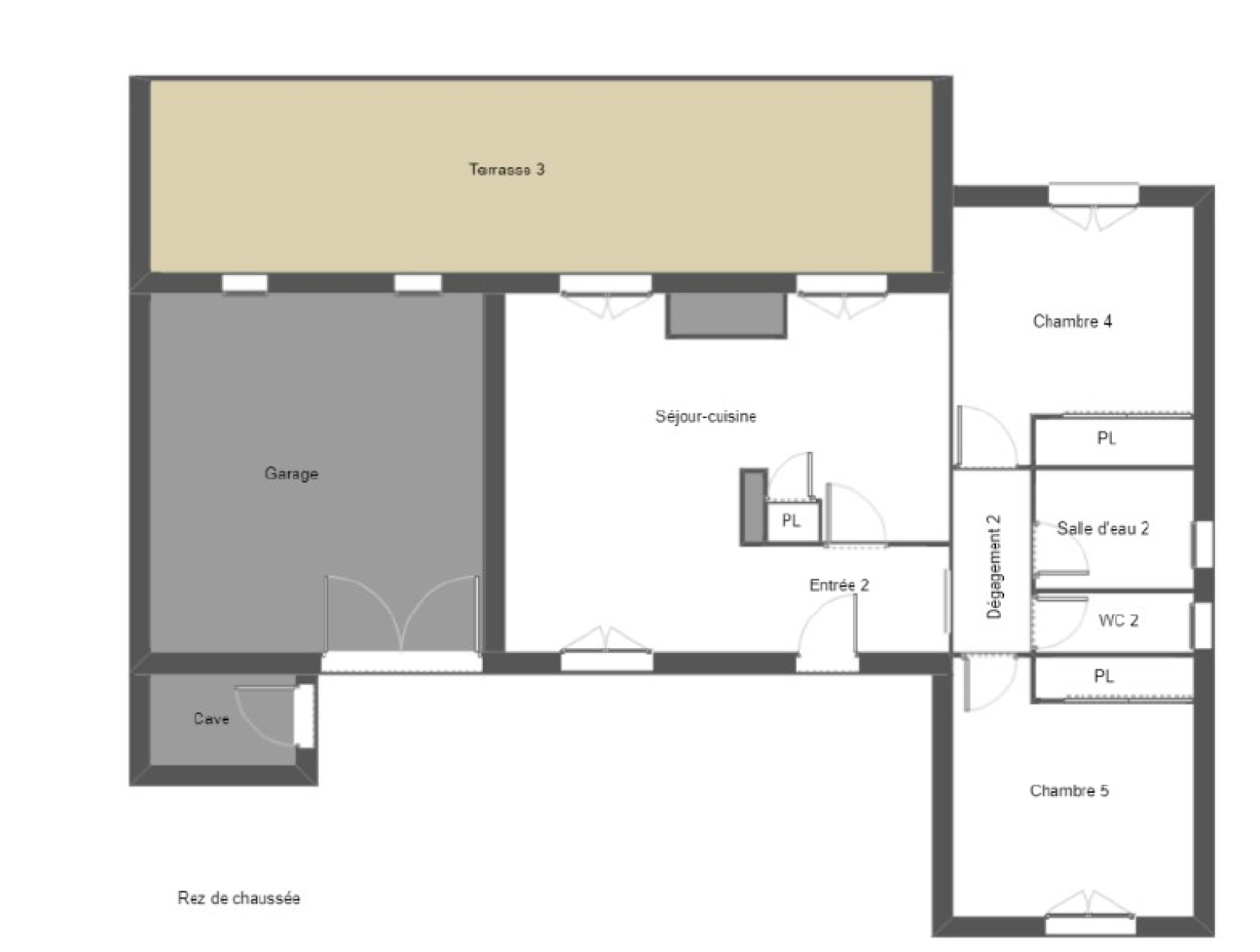
Un appartement de type 3 en rez de chaussée d’une superficie d’environ 70m2
Une villa indépendante d'une superficie d'environ 70m2
Un hangar d’environ 150 m² disposant d’une hauteur sous plafond de 6.00 m environ +
Possibilité de créer une mezzanine.
Cet ensemble immobilier est vendu en totalité et nom en lot séparé. Excellent rapport locatif.
La construction a été réalisée en matériaux traditionnels et de qualité.
Idéalement situé à Bastelicaccia peut convenir pour une entreprise artisanale ou de services compte tenu de l'existence du hangar attenant à l'existant et pouvant être agrandi en cas de besoin.
L'état général est très satisfaisant.
Assainissement individuel.
Renseignements complémentaires, revenus locatifs et fiscalité du bien consulter l'Agence.
Votre contact pour ce dossier : 06.22.00.08.08
-
Commerces et santé
-
Loisirs
-
Ecoles
-
Transports
-
Pratique
Les informations recueillies sur ce formulaire sont enregistrées dans un fichier informatisé par La Boite Immo agissant comme Sous-traitant du traitement pour la gestion de la clientèle/prospects de l'Agence / du Réseau qui reste Responsable du Traitement de vos Données personnelles.
La base légale du traitement repose sur l'intérêt légitime de l'Agence / du Réseau.
Elles sont conservées jusqu'à demande de suppression et sont destinées à l'Agence / au Réseau.
Conformément à la loi « informatique et libertés », vous disposez des droits d’accès, de rectification, d’effacement, d’opposition, de limitation et de portabilité de vos données. Vous pouvez retirer votre consentement à tout moment en contactant directement l’Agence / Le Réseau.
Consultez le site https://cnil.fr/fr pour plus d’informations sur vos droits.
Si vous estimez, après avoir contacté l'Agence / le Réseau, que vos droits « Informatique et Libertés » ne sont pas respectés, vous pouvez adresser une réclamation à la CNIL.
Nous vous informons de l’existence de la liste d'opposition au démarchage téléphonique « Bloctel », sur laquelle vous pouvez vous inscrire ici : https://www.bloctel.gouv.fr
Dans le cadre de la protection des Données personnelles, nous vous invitons à ne pas inscrire de Données sensibles dans le champ de saisie libre.
Ce site est protégé par reCAPTCHA, les Politiques de Confidentialité et les Conditions d'Utilisation de Google s'appliquent.
